高压双PLC交流控制电控
发布时间:2018-01-24来源:aiyouxi登录入口电控点击:10503

一、高压串电阻系统的组成
序号 | 名 称 | 型 号 | 数 量 | 说 明 |
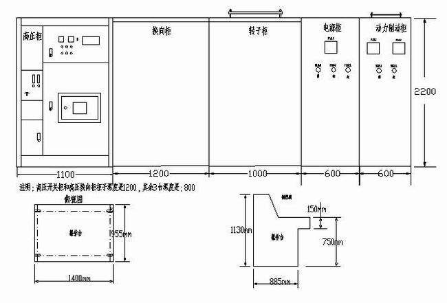
1 | 高压真空开关柜 | 6/10KV | 1台 | 高压真空断路器 |
2 | 高压真空换向柜 | 6/10KV | 1台 | 高压真空接触器 |
3 | 辅助电源柜 | ZF | 1台 | |
4 | 动力柜 | DLG | 1台 | |
5 | 转子控制柜 | ZKZK | 1台 | 真空接触器或可控硅 |
6 | 三体操作台 | TCZ | 1套 | 双PLC通讯 |
7 | 轴编码器 | E6B2-CWZ6C | 2 套 | 含连轴节 |
8 | 上位监控系统 | SJDK | 1套 | 工控机、19寸液晶显示器 |
二、技术原理
全数字交流aiyouxi登录入口的PLC控制系统。电源经高压柜、换向柜向交流绕线式电动机供电,控制aiyouxi登录入口的正反转运行。转子回路采用由晶闸管组成的大功率无触点开关控制加速电阻的切除。动力制动柜(或低频制动柜)控制aiyouxi登录入口的减速。操作台内装有二台可编程控制器,控制aiyouxi登录入口的加速、减速、爬行等工作。这两台PLC有主有从,分工协作,相互协调。与上位机和井筒信号系统构成智能网络控制系统。通过通讯方式完成各个系统之间的信号传输。借助于独特的软件设计,使aiyouxi登录入口各部件组成一个有机的整体,完成aiyouxi登录入口的各种工艺要求。
三、外形尺寸

